extraordinary and historic event location in Berlin

"Stadtbad Oderberger" is a truly unique event location in the very center of Berlin. The former baths, built in 1902, emanate Berlin history - a perfect venue for every top-class event. You can book:

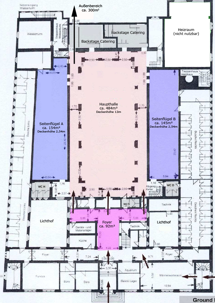
:: the main hall with the former swimming pool
:: two side wings

Have a look at the ground plan and these photos!

 
The baths are currently being reconstructed, but you can still book them as an event location. See here the current status of reconstruction

 
History:

At the end of the 19th century Berlin is growing rapidly, and public institutions like schools, hospitals or baths are badly needed. To meet this demand, Berlin architect Ludwig Hoffmann conceives a complex of buildings, accommodating both public baths and schools (now part of the GLS campus) - see his concept.

1902:   Opening

1945:   WW II ends, the baths are still functioning

1986:   The baths are closed due to damages in the basin

1989:   The Berlin Wall falls, a citizens' initiative prevents the demolition of the baths

1994:   Artists use the baths for art shows

2007:   The foundation "Denkmalschutz" buys the building and ...

2011:   ... sells it to the GLS German Language School Berlin

2012:   Reconstruction works begin: current status